L94WD羅茨風機是二葉羅茨風機,近日,有客戶咨詢該型號羅茨風機,對于L系列羅茨風機,華東風機完全有能力進行生產,并且有多位客戶案例。
該羅茨風機的具體參數如下:
流量:369m³/min
壓力:19.6KPA
電機功率:8P-185KW 380V
轉速:750rpm
主機靜荷載:7000kg
主機動荷載:10500kg
注意:二葉羅茨風機包括:L系列羅茨風機,均采用直聯傳動,并且,此類大型號羅茨風機,在安裝時,直接固定于地面上,沒有共用底座,與三葉羅茨風機區別還是不少的。
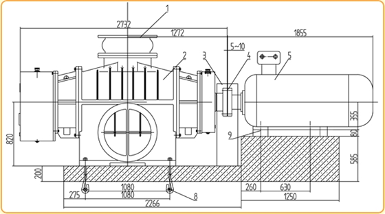
下圖為L94WD正視圖:

下圖為L94WD左視圖:

這里還有一份詳細原版的L94WD的圖紙,格式為PDF格式,下載請移步:L94WD羅茨風機圖紙
空氣懸浮鼓風機
磁懸浮鼓風機
三葉羅茨風機(皮帶傳動)
羅茨式蒸汽壓縮機


